Planta baja Torreblanca del Sol Fuengirola
Descripción
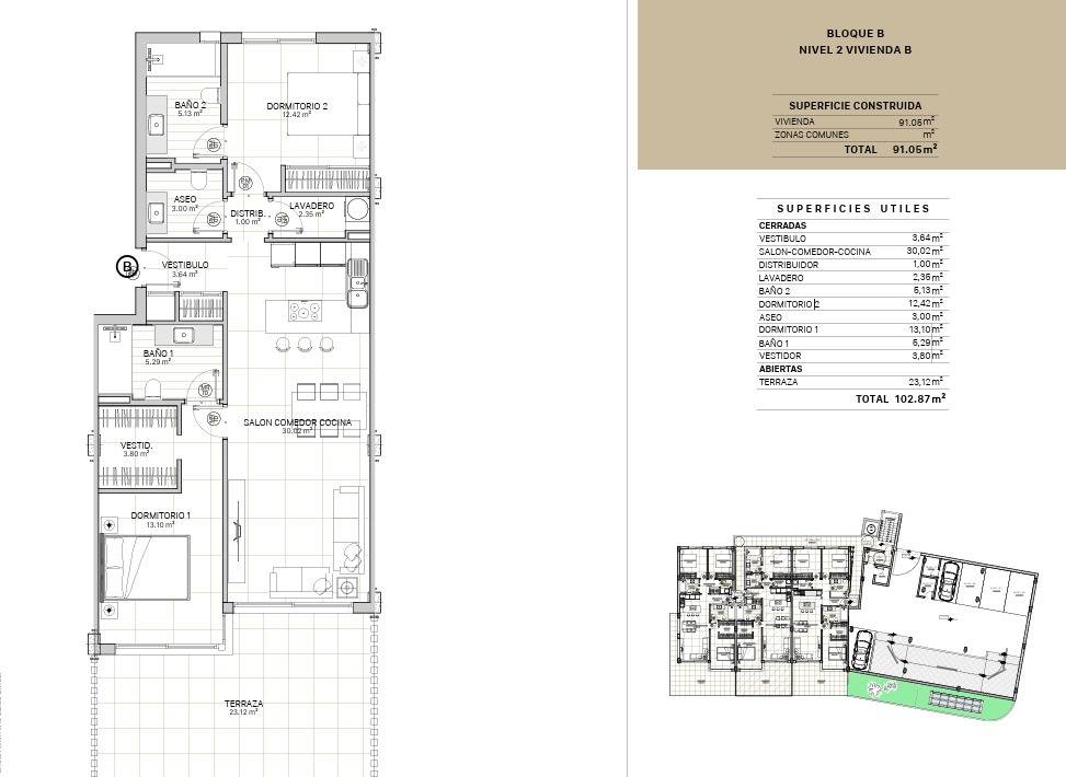
Apartamento en planta baja en venta en Torreblanca del Sol con terraza privada y diseño moderno~~Vivienda en planta baja dentro de una exclusiva promoción boutique en Torreblanca del Sol, con un precio de 535.000 €, ideal para quienes buscan comodidad, privacidad y una conexión directa con el exterior.~~La propiedad destaca por su terraza privada, perfecta para disfrutar del clima de la Costa del Sol, crear una zona chill-out o incluso un espacio verde propio.~~La distribución interior ofrece:~~Amplio salón-comedor con cocina integrada, moderno y funcional, con acceso directo a la terraza~~2 dormitorios, con excelente luminosidad~~Dormitorio principal con vestidor y baño en suite~~1 baño completo adicional + 1 aseo de cortesía~~Lavadero independiente, aportando practicidad en el día a día~~Distribución cómoda y bien aprovechada~~Incluye además:~~Plaza de garaje subterránea~~Trastero~~Aire acondicionado~~Armarios empotrados~~Forma parte de una comunidad privada y cerrada con zonas ajardinadas, piscina tipo resort, solárium y gimnasio interior, ofreciendo un entorno tranquilo y cuidado al detalle.~~Ubicada a pocos minutos de la playa, Los Boliches y el centro de Fuengirola, con fácil acceso a la autovía y excelente conexión con Málaga y Marbella.~~Una opción ideal tanto como residencia habitual, segunda vivienda o inversión en una de las zonas con mayor proyección de la Costa del Sol.
Características y comodidades
Ubicación
¿Te interesa?
Llámanos o déjanos un comentario.




